01분반 2조 0존
프로젝트 개요
기술개발 과제
국문 : 유해물질 감지 기반 연구실 자동 환기 및 실시간 모니터링 시스템
영문 : Hazardous Substance Detection-Based Laboratory Automatic Ventilation and Monitoring System
과제 팀명
0존
지도교수
서명원 교수님
개발기간
2025년 03월 ~ 2025년 06월 (총 4개월)
구성원 소개
서울시립대학교 환경공학부 20208900** 유**(팀장)
서울시립대학교 환경공학부 20208900** 김**
서울시립대학교 환경공학부 20218900** 이**
서울시립대학교 환경공학부 20228900** 황**
서론
개발 과제의 개요
(1) 개발 과제 요약
- 본 과제는 연구실 내 유해가스나 화학물질 누출로 인한 안전사고를 사전에 예방하고, 보다 쾌적하고 안전한 실험 환경을 조성하기 위한 자동 환기 및 공기질 모니터링 시스템을 구축하는 데 목적이 있다. 연구실에서 발생하는 다양한 유해물질을 실시간으로 감지할 수 있는 센서를 설치하고, 이 데이터를 기반으로 환기 시스템이 자동으로 작동하도록 구성한다. 기준 농도를 초과할 경우 환기 시스템이 가동되어 실내 공기를 신속히 배출하며, 이러한 작동 상태는 웹 기반 대시보드에서 실시간으로 확인할 수 있어 연구원들이 직관적으로 위험 상황을 인지하고 대응할 수 있다. 이 시스템을 통해 연구실 내 사고를 줄이고, 연구원의 건강과 장비를 보호하는 동시에, 안전의식을 고취키는 데 기여하고자 한다.
(2) 개발 과제의 배경 및 효과
- 화학물질에 대한 노출은 사람의 몸으로 흡수될 수 있는 물질과의 접촉을 의미한다. 노출을 평가한다는 것은 측정 등을 통하여 흡수의 가능성을 추정하는 것을 말한다. 공기 중에 가스와 증기, 흡입성 입자로 존재하는 것은 주로 호흡기계를 통해서 근로자의 몸으로 들어간다. 호흡기계는 인체에 대한 화학물질의 가장 중요한 흡수경로이다. 어떤 물질은 피부나 소화기계를 통해서 흡수되기도 한다. 화학물질을 사용할 때 환기 등 적정한 관리대책을 수립하여 유해성을 낮추었다 해도 환기의 부적절, 근로자의 부주의 등으로 노출 가능성이 높다면 위험은 높을 수 있다.
- 과학기술정보통신부의 ‘연구실 안전사고 현황’에 따르면 2023년 연구실 안전사고는 395건을 기록했으며, 부상자가 401명으로 처음 400명을 넘어섰다. 연도별로 보면 2020년 225건에서 2021년 291건, 2022년 326건에 이어 2023년 395건으로 점차 가파르게 늘고 있다. 뿐만 아니라 부상자 중 후유장해 등급을 받은 중상자도 2020년 4명, 2021년 6명, 2022년 11명 등을 기록하다 2023년 21명으로, 사고가 2배가량 늘어나는 동안 중상자는 5배 늘어난 것으로 강도도 점차 커지는 추세다.
- 지난해 과학기술정보통신부는 유해물질 노출도가 높은 기관 400곳을 집중 관리하는 한편 연구원들이 안전 교육과 연구실 점검 등에 활용할 수 있는 모바일 애플리케이션 ‘랩스’(Labs) 등을 출시했지만, 출시 50여일 간 다운로드 건수는 500여 회에 그친 것으로 나타났다. 이러한 연구실 안전사고 증가와 연구자들의 낮은 안전의식을 고려할 때, 단순한 교육과 점검만으로는 실질적인 변화를 기대하기 어렵다.
- 실제로 서울시립대학교 환경공학부의 약 8개 연구실을 대상으로 연구실 안전관리 현황에 대해 설문조사를 진행한 결과, 연구실 내 공기질에 대해 대체로 불만족을 표했으며, 약 60% 이상이 화학사고를 경험했다고 답했다. 그럼에도 불구하고 70% 이상이 안전장비를 착용하지 않고 있으며, 일부 연구자들은 자연 환기가 충분하다고 판단해 인공적인 환기 장치를 가동하지 않는 것으로 드러났다. 따라서 연구원들의 안전의식을 높이고 연구실 내 유해물질 노출 위험을 줄이기 위해 자동 환기 시스템을 도입하여, 연구원이 별도로 환기 장치를 조작하지 않더라도 최적의 공기질을 유지할 수 있도록 자동화된 시스템을 구축하고자 한다. 또한, 연구원들이 실시간으로 유해물질 농도를 확인할 수 있는 모니터링 인터페이스를 개발하여 시각적이고 직관적인 방식으로 데이터를 전달하여 위험 여부를 쉽게 인지할 수 있도록 하여, 보다 안전한 환경에서 연구를 수행하고 실험실 내의 화학사고를 최소화하는 것이 목표이다.
개발 과제의 목표 및 내용
(1) 설계 대상지 선정
서울시립대학교 환경공학부의 약 8개의 연구실의 연구원들을 대상으로 한 설문조사에 의하면 상당수의 답변자가 연구실에서의 공기질에 대한 불만을 표출하였다. 또한, 마스크와 같은 안전장비는 ‘가끔 착용’ 또는 ‘착용하지 않음’ 응답이 대부분이었는데, 그 이유는 ‘귀찮음’, ‘크게 위험하지 않다고 생각’, ‘불편함’, ‘답답함’ 등으로 나타났다. 연구실 내 환기 시스템의 작동 현황에 대한 이해도 또한 낮았으며, 특히 일부 연구실에서는 작동 기준조차 모르는 경우가 있었다. 따라서 연구실 내의 환기 기준을 명확히 하고, 자동화된 환기 시스템을 구축할 필요가 있음을 확인했다. 실험 도중 유해물질 누출로 인한 불편사항 발생 빈도를 조사한 결과 연 1, 2회에서 많게는 주 1, 2회까지 발생하는 것으로 확인되었으며, 이에 대한 대응 방식도 환기 및 대피로 제한적인 모습을 보였다. 또한, 일부 연구실에서는 바쁨, 대처 방법 미숙 등의 이유로 적극적인 대응이 이루어지지 않고 있었다. 설문 결과를 종합해 보면, 연구실 내 유해물질 노출 위험은 항상 존재하지만 이에 비해 연구원들의 안전 의식 및 대응 능력은 한계가 있음을 알 수 있다. 이에 따라, 안전한 실험 환경 조성을 위해 자동 환기 시스템을 도입하는 것이 필요하며, 설문 응답자들 또한 이에 대해 긍정적인 반응을 보였기에 서울시립대 환경공학부 연구실 중 시대융합관 516호를 설계 대상지로 선정하였다.
(2) 각 연구실에서 배출되는 유해물질 조사 및 환기시스템 작동 기준 설정
① 유해물질 조사
서울시립대학교 환경공학부의 각 연구실에서 배출되는 물질은 설문조사 결과 NH₃, NOx, HCl, H₂,SO₄, CO, CO₂, CH₄, CH₃OH, VOCs, PFAS, 중금속, 타르 등으로 나타났다. 이들 물질은 인체에 유해할 수 있으며, 호흡기 질환, 신경계 손상, 발암 가능성 등을 초래할 위험이 있다. 특히, NOx, HCl, H₂SO₄, VOCs 등은 자극성이 강해 흡입 시 호흡기 손상을 유발할 수 있으며, CO는 산소 운반을 방해하여 심각한 건강 문제를 초래할 수 있다. 또한, 중금속과 PFAS는 체내에 축적되어 장기적으로 독성을 나타낼 수 있다.
② 환기시스템 작동기준
‘화학물질 및 물리적 인자의 노출기준 제1조’에 따르면, 인체에 유해한 가스, 증기, 미스트, 흄, 분진, 소음 및 고온 등 화학물질 및 물리적 인자에 대한 작업환경 평가를 수행하고, 근로자의 건강에 유해하지 않은 기준을 정하여 관리함으로써 유해물질로부터 근로자의 건강을 보호하는 것을 목적으로 한다. 이에 따라, 본 과제에서는 환기 시스템의 작동 기준을 법령에서 정한 노출기준을 기반으로 설정하고자 한다. 노출기준은 시간가중평균노출기준(Time Weighted Average, TWA), 단시간노출기준(Short Term Exposure Limit, STEL), 최고노출기준(Ceiling, C)으로 구분된다. 연구실 및 산업 환경에서는 다양한 화학물질이 혼재하는 경우가 많으므로, 혼합물의 노출기준 또한 환기 시스템 작동 기준에 반영되어야 한다. 혼합물의 노출기준은 다음식과 같이 산출되며,
C1/T1 + C2/T2 + ... + Cn/Tn ( C: 화학물질 각각의 측정치 , T: 화학물질 각각의 노출기준)
다음과 같은 기준이 적용된다.
- 서로 다른 부위에 작용한다는 명확한 증거가 없는 경우, 각 유해물질의 노출 산출값의 합이 1을 초과하지 않도록 자동 환기 시스템이 작동한다. - 혼합된 물질이 인체의 서로 다른 부위에 영향을 미칠 경우, 어느 하나라도 개별 노출기준을 초과하면 환기 시스템이 즉시 가동된다.
본 기준은 화학물질 및 물리적 인자의 노출기준 제6조에 근거하며, 연구실에서 근로자의 건강을 보호하기 위해 자동 환기 시스템이 효과적으로 작동하도록 설정한다.
(3) 가스감지센서 설계 및 설치
- 가스 감지 센서에는 반도체 가스 센서, 전기화학 가스 센서, 적외선식 가스 센서 등이 있다. 이 중 반도체 가스 센서(MOS, 금속 산화물 반도체형)는 민감도가 높고 다양한 가스 감지가 가능하며, 가격이 저렴하고 수명이 길다는 장점이 있어 가장 널리 사용된다. 본 과제에서는 여러 종류의 유해가스를 효과적으로 감지하기 위해 MOS 기반 센서를 중심으로 구성하였다. MQ-8, MQ-7, MICS-6814 센서를 활용하여 수소(H₂), 일산화탄소(CO), 암모니아(NH₃), 이산화질소(NO₂) 등을 감지할 수 있으며, 이를 통해 실험실 환경에서 발생할 수 있는 주요 유해가스를 폭넓게 모니터링할 수 있다.
- 센서는 감지해야 할 가스의 종류와 물리적 특성을 고려하여 적절한 위치에 설치해야 한다. 일반적으로 가스의 비중과 확산 특성에 따라 이상적인 설치 위치는 다음과 같다.
- 센서는 경우에 따라 바닥 근처, 사람 키 높이, 천장 부근 등 다양한 위치에 설치할 수 있으나, 설계의 주 목적이 작업자의 호흡 피해 예방이기 때문에 작업자의 호흡 위치인 사람 키 높이를 기준으로 설치하는 것이 가장 효과적인 것으로 판단된다.
(4) 자동 환기 시스템 설치
- 화학물질 등을 취급하는 연구실에서는 유해물질의 증기가 연구실 내부에 확산되어 연구원에게 노출되어 건강에 악영향을 미치게 되므로 환기시설을 설치하여 연구원의 건강을 보호해야 한다. 그렇기 때문에 유해물질의 농도를 상시에 모니터링하여 환기를 시킴으로써 연구원의 건강을 보호하고, 유해물질의 농도가 일정 수준 이상으로 상승하지 않도록 관리하는 것이 매우 중요하다. 이를 위해 연구실 내 유해물질 농도를 센서를 이용해 실시간으로 측정하고, 그에 따라 자동으로 환기가 이루어지도록 하는 시스템이 작동하도록 하려고 한다.
① 환기 방식
환기 방식은 크게 자연환기, 기계환기, 혼합형 환기로 나뉘며, 이 중 기계환기는 송풍기 등의 기계장치를 이용하여 외부 공기를 실내로 공급하거나 실내 공기를 외부로 배출함으로써 실내 공기를 효과적으로 교환하는 방식이다. 본 설계에서는 이러한 기계환기를 기반으로 자동 환기 시스템을 설계하고자 한다. 또한 기계환기는 공기 흐름을 조절하는 방식에 따라 세 가지 유형으로 분류된다. 외부공기를 공급하는 송풍기와 실내공기를 배출하는 송풍기가 결합된 환기체계(기계환기 1종), 외부공기를 공급하는 송풍기와 실내공기가 배출되는 배기구가 결합된 환기체계(기계환기 2종), 외부공기가 도입되는 공기흡입구와 실내공기를 배출하는 송풍기가 결합된 환기체계(기계환기 3종)이다. 이 중에서 오염물질이 외부로 유출되는 것을 방지하면서도 실내 압력 조절이 가능한 기계환기 1종 방식으로 자동환기시스템을 설계한다.
환기량 계산
연구실의 공기질을 유지하고 유해물질을 효과적으로 제거하기 위해서는 환기 횟수와 환기량을 계산하여 이에 맞게 설계해야 한다. 유해물질 발생에 따른 전체환기 필요환기량을 계산한 결과와 구체적인 적용 내용은 3. 설계에서 다루기로 한다.
(5) 연구실 내부 및 외부 실시간 모니터링 시스템 구축
① 연구실 내부의 가스상 유해물질 실시간 모니터링 시스템
본 과제는 연구실 내부에서 발생하거나 외부로부터 유입되는 기체상 유해물질을 실시간으로 모니터링하는 시스템을 구축하는 것을 목표로 한다. 서울시립대학교 시대융합관 516호를 대상으로 센서를 설치하고, 연구실 내에서 발생할 수 있는 수소(H₂), 일산화탄소(CO), 암모니아(NH₃), 이산화질소(NO₂) 등의 가스를 24시간 실시간 모니터링한다. 수집된 데이터는 연구실 내부에 설치된 디지털 디스플레이 장치(웹 기반 대시보드)에 실시간으로 표시되며, 농도가 기준치를 초과할 경우 경고 메시지가 함께 출력된다. 이를 통해 연구실 내부 사용자에게 안전의식을 고취시키고, 위험 상황을 스스로 인지하고 즉각적으로 대응할 수 있도록 한다. 또한 기준치 초과 시 자동 환기 시스템이 작동하여 피해를 최소화한다.
② 연구실 외부로의 기체상 유해물질 유출 대비 실시간 모니터링 시스템
연구실 내부에서 발생한 유해가스가 외부로 유출되는 경우를 대비해, 연구실 외부(복도)에서도 실시간 모니터링이 가능하도록 시스템을 설계한다. 연구실의 센서 데이터는 MQTT 방식으로 전송되며, 복도에 설치된 디스플레이 장치를 통해 연구실 유해물질 정보를 제공한다. 마찬가지로 연구실의 유해물질 농도가 기준치를 초과하면 경고성 메세지를 함께 보여줌과 동시에 자동 환기 시스템이 작동하여 유해물질의 확산을 방지한다. 이 시스템은 연구실 내부 뿐만 아니라 연구실 외부 및 그 주변에 있는 사람들에게까지도 그 위험성을 스스로 인지하고 대비할 수 있게 한다.
관련 기술의 현황
관련 기술의 현황 및 분석(State of art)
- 전 세계적인 기술현황
① 실험실 환기 시스템
- LABCONTROL/ TCU-LON II controller(TROX)
TCU-LON-II 전자 제어기는 클린룸, 병원, 실험실 및 사무실 등 다양한 건물에 사용될 수 있으며, 실험실에서는 주로 흄 후드의 공기 흐름 제어와 실내 압력/온도 조절에 활용된다. 차압을 통해 실제 공기 흐름 속도를 모니터링하고, 자동 제로점 보정 기능으로 측정의 안정성을 유지할 수 있다. LonWorks® 인터페이스를 통해 네트워크 구성 및 원격 접근이 가능하기 때문에 고장 메세지를 포함하여 모든 설비 변수를 효율적으로 중앙에서 기록하고 표시하여 안정성을 높이고 더욱 유연한 설비를 구성할 수 있다.
- TROX 흄 후드 제어 시스템((주)해람테크)
유해물질이 발생할 수 있는 실험실 환경에서는 흄후드가 필수적인 장치로, 이를 통해 오염물질의 누출을 막고 실내 공기 흐름을 안정적으로 유지할 수 있다. TROX의 흄후드 제어 시스템은 샤시 위치와 무관하게 일정한 면풍속을 유지하도록 정밀하게 설계되어 있으며, 온도 상승 시 자동으로 최대 배기를 수행해 안전성을 높인다. 또한 급·배기 풍량을 실시간으로 조절해 실내 압력을 일정하게 유지하고, 주야간 모드 전환에도 빠르게 반응해 다양한 실험 환경에 유연하게 대응할 수 있다.
① 자동 환기 시스템
- 하이브리드형 자연 환기 시스템(국립창원대학교 산학협력단)
하이브리드형 자연 환기 시스템은 실내외 온도, 습도, 풍속을 실시간으로 측정하고, 이를 기반으로 송풍팬을 제어하여 환기와 냉방을 최적화한다. 제어부는 각 센서부로부터 데이터를 받아 송풍팬을 자동으로 조절해 자연 환기와 냉방을 지원하여 계절과 시간대에 맞는 최적의 환기 상태를 유지할 수 있다. 이 시스템은 외부 풍속이 약할 경우에도 송풍팬을 통해 자연 환기 효과를 지원하며, 온도와 습도에 따른 엔탈피 차이를 활용해 에너지를 절약하면서 쾌적한 실내 환경을 유지할 수 있다.
- 각실제어 환기시스템((주)힘펠)
각실제어 환기시스템은 거실, 침실, 작은 방 등 개별 공간마다 설치된 센서 내장 디퓨저를 통해 실시간 공기 상태를 감지하고 환경에 따라 자동으로 환기를 수행한다. 공기질 정보는 LED 조명으로 시각화되며 모바일 애플리케이션을 통해 사용자는 각 공간별 환기 상황을 직관적으로 확인하고 제어할 수 있다. 특히 고효율 열회수 기술을 적용하여 냉,난방 손실을 줄이고 에너지 절감 효과가 있는 것이 특징이다.
③ 실시간 공기질 측정 및 모니터링 시스템
- 통합 공기질 모니터링 시스템((주)센트리)
통합 공기질 모니터링 시스템은 실내, 실외의 공기질을 측정할 수 있는 디바이스(환경 계측기), 측정값을 표출하는 디바이스(DID, PC, Mobile 등), 공기질을 저감하는 디바이스(공기청정기 등)으로 구성되어 있다. 측정한 공기질의 오염도가 높아지면 공기청정기 등의 저감장치와 연계하여 공기의 오염도를 낮추고, 건물 외부의 공기 오염도에 따라 환기 여부를 결정한다. 또한 각 장치의 운전 상황을 DID, PC, Mobile 등의 디바이스를 통해 실시간으로 모니터링하여 확인할 수 있다.
- 실내 공기질 실시간 모니터링 시스템/PRIO A100(와이즈컨)
PRIO A100은 7가지의 센서를 사용하여 대기의 상태나 주위 환경을 모니터링할 수 있는 IoT기반의 스마트 기기로, 온도, 습도, CO2, CO, VOCs, 미세먼지 등의 데이터를 확인할 수 있다. Wi-Fi 및 무선 LTE를 사용할 수 있으며 다수의 장비를 설치하여 통합 관제 시스템을 구축할 수 있다. 또한 전면에 표시된 LED를 통해 통합대기환경지수 (CAI)를 바탕으로 계산한 실내공기오염 도를 사용자가 실시간으로 확인하고 모니터링할 수 있다.
- IAQ Monitoring /uHoo(INBKorea)
실내공기질 측정 모니터링 시스템인 uHoo는 Wi-Fi 통신망을 이용하여 세계 어디에서나 모니터링이 가능하다.
센서를 통해 온도, 습도, 압력, 미세먼지, CO2, CO, 오존, 포름알데하이드, VOCs 등 9가지의 실내공기질을 측정하고 스마트폰으로 모니터링할 수 있다.
- 특허조사 및 특허 전략 분석
① 실내외 공기질 측정기를 이용한 IoT 자동환기장치
- 특허명: 실내외 공기질 측정기를 이용한 IoT 자동환기장치
- 특허번호: 10-2017-0115913
- 발명자: 김우현 외 4
- 법적 상태: 거절
- 특징: 본 발명은 실내외 공기질을 측정하여, 사용자가 임의로 설정한 공기질 기준을 초과하는 경우 자동으로 환기장치를 가동시키는 자동환기 시스템 및 이를 이용한 환기방법에 관한 것이다. 사물인터넷 기술을 접목하여 원격모니터링과 제어가 동시에 이루어지는 시스템을 구축한다. 또한 실외용 측정장비의 방수방진 성능을 확보하고 사용자 장소에 따른 센서 종류 변경이 가능하도록 모듈형 설계를 하며, 창호에 탈착이 가능한 외형 설계로 설치비용을 감소시킬 수 있는 장치에 대한 것이다.
- 효과: 별도의 배선이 필요 없으며, 송풍 환기장치는 기존 창문에 설치할 수 있으므로 시공과 유지보수가 용이하다는 효과가 있다. 실외공기질 계측장치는 모듈형으로 설계하여 사용장소와 용도에 맞게 센서 종류를 교환할 수 있으며, 방수 방진 소재와 기구설계를 통하여 외부 환경에 노출되는 실외에 부착된 상태에서도 원활하게 작동된다.
② IoT센서를 이용한 자동환기 시스템
- 특허명: IoT센서를 이용한 자동환기 시스템
- 특허번호: 10-2021-0023598
- 발명자: 이서민
- 법적 상태: 취하
- 특징: wifi 통신모듈이 내재한 공기센서와 공기정화 제어기를 통해, 자동으로 공기를 정화시켜주는 자동환기시스템이다.
- 효과: 실내공기 오염물질인 방사능 물질 라돈, 포름알데히드, 석면, 각종 박테리아 등을 자동으로 방출시킬 수 있다.
③ 황화수소 검출 기반 자동 환기 시스템
- 특허명:황화수소 검출 기반 자동 환기 시스템
- 특허번호: 10-2019-0097899
- 발명자: 박병기 외 3
- 법적 상태: 거절
- 특징: 하수·폐수 처리시설 등에서 발생되는 황화수소를 실시간으로 검출하여 농도를 측정하고, 농도가 기준치를 초과하면 경고를 보낸 후 환기장치를 자동으로 작동시키거나 수동 제어가 가능하도록 하여, 작업자가 고농도 황화수소에 노출되는 것을 예방할 수 있는 자동 환기 시스템이다.
- 효과:
-작업공간 내의 황화수소 농도를 실시간으로 검출하고, 검출된 황화수소 농도가 미리 설정된 기준값 이상일 경우 작업공간 내에 설치된 환기장치를 자동으로 작동함으로써, 작업공간 내의 황화수소 농도를 자동으로 조절할 수 있게 된다. -근거리 통신망을 통해 사용자 단말기와 연결되어, 사용자는 사용자 단말기를 통해 현재 작업공간 내의 황화수소 농도를 실시간으로 확인할 수 있으며, 필요에 따라 원격으로 작업공간 내에 구비된 환기장치의 작동을 조작할 수 있다.
④ 실내외 공기질 측정기를 이용한 IoT 자동환기장치
- 특허명: 실내 공기 청정 시스템
- 특허번호: 10-0824431
- 발명자: 이재신 외 5
- 법적 상태: 소멸
- 특징: 실내 공기 중의 미세먼지, 이산화탄소, 일산화탄소, 휘발성 유기화합물(VOCs), 온습도, 이온, 오존 등의 유해물질을 다양한 센서로 감지하여, 오염 수준에 따라 환기 장치, 이온 발생기, 공기 정화 장치 등을 자동으로 제어하는 실내 공기 청정 시스템에 관한 것이다. 이 시스템은 각 센서를 모듈화하여 실시간 통신을 수행하고, 외부 제어기와 유무선으로 연결되어 오염물질 농도에 따라 제어 명령을 자동으로 송신하거나 수신할 수 있으며, 센서 정보에 따라 외부 기기를 능동적으로 작동시키는 자동화 기능을 포함하고 있다.
- 효과:
-사용자가 원하는 설치공간에 적합한 환경기준을 지향할 수 있으며 나아가 쾌적한 환경을 상시 유지할 수 있는 장점이 있다. -사용자의 선택에 따라 각 센서의 선택적인 차용 또는 공기정화에 필요한 각 기기 인정화 필터, 이온발생기, 환기팬, 오존발생기의 선택적인 차용이 가능한 장점이 있다. -외부서버로부터 제어알고리즘을 다운받아 사용할 수 있으며 외부서버 접속 방식은 사용자의 편의에 따라 유선 또는 무선 전송방식이 적용 가능하다. -각 센서의 감지정보와 각 기기의 동작상태를 문자 또는 그래픽 형태로 디스플레이부를 통해 실시간 제공 받을 수 있는 이점이 있다. -적외선센서의 이동체 감지 여부에 따라 상기 각 기기의 구동제어신호를 달리 설정하여 각 기기를 상황에 따라 제어할 수 있다. -상기 외부 서버 접속에 따른 각 기기의 자동 제어 모드 또는 외부서버 접속 해제에 따른 각 기기의 수동 제어 모드의 선택 및 각 기기의 수동조작이 가능함은 물론이며 각 센서별 전원 공급 또는 차단의 선택이 가능한 장점이 있다.
- 기술 로드맵
시장상황에 대한 분석
- 경쟁제품 조사 비교
① 실내 공기질 모니터링 시스템
- 제품명: 나비엔 청정환기시스템 TAE530
- 회사명: 경동나비엔
- 특징:
- PM2.5, 라돈, CO2, TVOC, 온도 및 습도의 수치 등의 정보를 제공하고 이것을 바탕으로 통합 공기질을 정보를 모니터를 통해 실시간으로 알 수 있다. - 실내 환경에 맞는 필터를 선택할 수 있다. 프리필터, 탈취필터, 초미세 집진필터는 고정이지만 유해가스 강화형 필터와 매연 강화형 필터 중에 선택 가능하다. - 측정된 공기질 데이터를 기반으로 자동으로 공기질을 조절하며, 스마트폰 앱을 통해 원격 조작 및 상태 확인이 가능하다. 또한 앱을 통해 실내 공기질 정보, 필터 교체 알림, 공기질 리포트를 확인할 수 있다. - 에너지 효율이 높고, 유지비용이 상대적으로 저렴한 편이다. (24시간 1개월 작동 시에도 전기료 1만원대 수준)
- 차이점 및 장단점
- 대상 환경이 가정이나 사무실 중심으로 설계되어 있어, 실험실 특유의 유해가스나 화학물질에 대한 대응은 한계가 있다. - 실시간 대시보드 형태의 모니터링 인터페이스가 제한적이기 때문에 그 인터페이스가 없는 공간의 사람들은 공기질의 상태를 모를 수 있다.
② 가스, 방사선, 기상정보 등의 정보를 통합한 실시간 모니터링 시스템
- 제품명: ProRAE Guardian
- 회사명: Honeywell
- 특징:
- 가스, 방사선, 먼지, 기상 정보 및 생체신호까지 다양한 센서를 통합해 실시간으로 모니터링할 수 있는 시스템이다. - 무선 네트워크 기반으로 최대 512개의 센서 장비를 연결해 광범위한 지역의 데이터를 통합 관리할 수 있다. - Google Maps와 연동하여 현장 장비의 상태 및 위치를 한눈에 확인할 수 있다. - 데이터를 자동으로 교정하여 리포트를 제공하고, 텍스트 및 그래프 형식으로 데이터를 볼 수 있다. 이렇게 구성된 데이터는 하나의 대시보드에서 시스템 전체 상태로 통합해 볼 수 있다. - 사용자가 직접 경고 기준을 설정할 수 있으며, 이메일 및 문자 알림 기능을 통해 긴급 상황에 신속하게 대응할 수 있다. - 전용 SDK(Software Development Kit)를 제공해, SCADA(산업 제어 시스템), 예측 분석, 경보 시스템 등 외부 시스템과의 연동이 쉽다. - 네트워크 보안 및 데이터 보호 기능이 내장되어 있다.
- 차이점 및 장단점
- 주로 산업 현장이나 재난 대응과 같은 대규모 환경을 대상으로 설계되어 있어, 일반 연구실 수준에는 과한 사양과 비용 부담이 발생할 수 있다. - 인터페이스나 기능이 복잡해, 단순한 실내 공기질 모니터링이 필요한 환경에는 오히려 비효율적일 수 있다. - 모니터링 중심의 제품으로, 유해물질에 노출될 경우 자동 환기 시스템을 통해 유해 물질을 제어하는 기능은 내장되어 있지 않다.
③ 기존 기술과의 차별성 연구실은 일반적인 실내 공간보다 화학물질, 실험기기, 사람의 행위 등 다양한 위험 요소가 복합적으로 존재하여 예측이 어렵다. 따라서 단순한 환기 시스템만으로는 충분하지 않으며, 실시간 모니터링, 유해물질 감지 기반 환기 제어, 위험 대응 및 후처리까지 포함하는 통합형 안전관리 시스템이 요구된다.
- 마케팅 전략 제시
개발과제의 기대효과
기술적 기대효과
- 본 과제를 통해 구축되는 시스템은 센서 기반의 공기질 측정, 실시간 데이터 통신, 대시보드 시각화, 자동 환기 제어 등 다양한 IoT 기술이 통합된 구조로, 기존의 단순 감시형 안전관리 시스템에서 한 단계 진보된 형태의 안전 대응 시스템을 구현한다는 데 기술적 의의가 있다. 특히, MOS 기반의 다중 가스 센서를 활용해 수소, 일산화탄소, 암모니아, 이산화질소 등 다양한 유해가스를 실시간으로 감지하고, 그 데이터를 MQTT 프로토콜을 통해 중앙 시스템으로 전송하여 내부 및 외부 디스플레이에 시각적으로 전달함으로써 데이터 수집에서 사용자 알림까지의 과정을 자동화하였다.
- 또한, 센서 데이터를 기반으로 농도 변화에 따라 자동으로 환기 시스템이 작동하도록 설계되어, 단순 감지에 머물지 않고 실질적인 대응 기능까지 자동으로 수행되도록 구현하였다. 이러한 기술은 향후 고도화된 위험 예측 모델, AI 기반 이상 징후 탐지 시스템, 사용자 맞춤형 알림 시스템 등으로 확장할 수 있는 기반 기술이 되며, 데이터 축적을 통해 지속 가능한 연구실 환경 관리 플랫폼으로 발전할 수 있는 가능성을 제공한다.
경제적, 사회적 기대 및 파급효과
(1) 경제적 파급효과
- 기존 연구실 환기 방식은 연구원들의 자율적인 판단에 의한 것이었거나 항상 가동되었기 때문에 불필요한 에너지가 소모될 가능성이 있다. 하지만 본 시스템은 실시간 공기질 분석을 기반으로 자동 환기 시스템을 운영하여 에너지 사용을 최적화하고, 전력 소비를 줄여 연구실 운영비 절감 효과를 기대할 수 있다. 뿐만 아니라, 연구실 내 유해물질 유출 및 대기오염으로 인한 사고 발생 시 연구 장비 및 시설 손상으로 막대한 복구 비용이 발생할 수 있다. 본 시스템을 통해 실시간 감지 및 즉각적인 대응이 가능해져, 사고 발생 빈도를 줄이고 연구실 환경을 보다 안전하게 유지할 수 있다.
(2) 사회적 파급효과
- 국가연구안전관리본부의 연구실 실태조사 보고서에 따르면 2018년부터 2020년 사이에 우리나라의 연구실 안전사고는 838건에 달하며 2020년 이후에도 증가하는 추세에 있다고 한다. 또한 사고 발생의 원인은 대부분 보호구 미착용 등 안전수칙 미준수, 안전점검 불량 등으로 인해 발생하였다고 한다. 연구실 안전사고는 대부분 연구원의 사소한 부주의에 의해 발생하는 것이며, 전반적인 안전 불감증으로 인해 연구실 안전사고는 해마다 증가하고 있다. 본 시스템은 연구실 안전사고를 예방하고 연구자들의 안전의식을 높이는 데 기여할 수 있을 것으로 기대된다.
- 또한, 연구원들의 건강 보호 측면에서 실시간 공기질 모니터링을 통해 연구원들이 유해물질에 노출되는 위험을 줄일 수 있다. 기존 연구실에서는 연구원들의 자율적인 판단에 의존하거나 일정한 속도로 환풍기를 항상 가동시켰다. 하지만 본 시스템을 도입하면 자동으로 실험실 내 공기질을 측정하고, 기준치를 초과할 경우 즉각적으로 농도에 따른 정확한 환기 조치를 시행할 수 있다.
- 본 시스템이 정착되면, 대학 내 연구실뿐만 아니라 타 연구 기관 및 산업 연구소에서도 적용할 수 있는 연구실 안전관리 모델이 될 수 있다. 연구 환경이 자동화됨으로써 연구원들의 건강을 보호하고, 연구실 내 안전한 작업 환경을 조성하는 데 기여할 수 있다.
개발 과제의 경제성 분석
설계 제품의 초기 비용 계산
설계 제품의 운영 비용 계산
(1) 전력 비용 계산
- 각 센서와 부품의 소비전력을 고려하여 하루 소비 전력과 전기요금, 연간 전력 비용을 계산하면 아래와 같음. 이 때 설계 제품은 한 연구실에 하나 설치하며, 하루에 약 9시간 또는 오염물질이 하루 10회(1회당 20분 가동) 감지된다고 가정하였다. 또한 환기 팬은 필요 환기량(1시간에 약 1,625㎥/h)에 맞추어 약 200w짜리 중형 환기팬을 이용, 전력 단가는 한국전력공사(KEPCO) 값을 참고하여 교육용 요금의 평균값인 80원/kWh을 적용하였다.

- 9시간 가동 또는 10회 가동 시 각각
- (연간 전력 비용) = 717.4 kWh x 80원/kWh=57,392원 또는 303.7 kWh x 80원/kWh=24,296원이다.
(2) 유지관리 비용
- 고장 시 장치 유지보수를 위한 비용으로 초기비용의 5%인 24,750원이 추가로 발생한다고 가정하면,
- (연간 유지관리 비용) =33,167원+ 24,750원 = 57,917원이다.
- 이에 따른 연간 운영 비용은 다음과 같다. (9시간 가동 or 10회 가동)
- (연간 운영 비용) = 57,392원 or 24,296원 + 57,917원 = 115,309원 or 82,213원
24시간 환기 가동 시와 자동 환기 시스템의 전력 소비량 비교
(1) 팬과 센서 소비전력 기준 계산
- 따라서 상시 환기 시스템에 비한 절감량은 하루 9시간 가동 기준 1,033.5 kWh, 82,679원, 하루 10회 가동 기준 1,447.2 kWh, 115,773원으로, 각각 약 59.0%, 82.6%의 에너지 절감 효과를 얻을 수 있다.
(2) 환기량(유량) 기준 계산
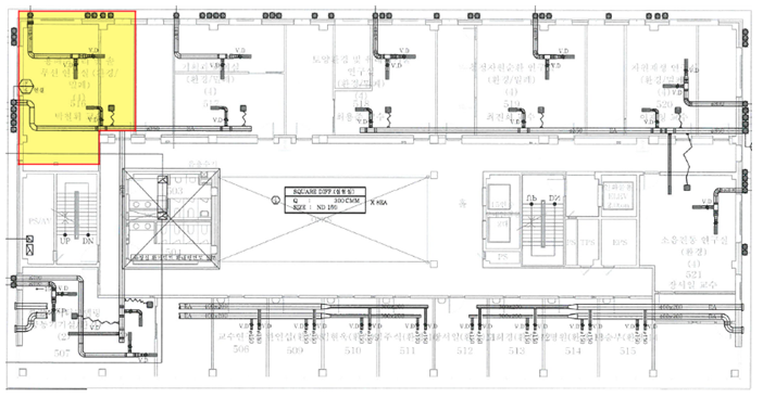
- 도면에서는 실험실 디퓨저의 전체 유량이 300 CMM으로 표기되어 있으며, 디퓨저 8개로 분배된 경우 실험실 하나의 환기량은 약 2,250 m³/h이다.
- 덕트 계산치(1,000~1,200 m³/h)와 도면상 디퓨저 유량(2,250 m³/h)을 비교한 결과, 실제 설비에서 발생할 수 있는 오차(덕트 계통의 마찰 손실, 효율 차이 등)를 고려하여, 이론치와 설계치의 중간값으로 보수적으로 약간 낮은 값인 2,035 m³/h를 최종 환기량으로 보정하였다.
- 따라서 상시 환기 시스템에 비한 절감량은 하루 9시간 가동 기준 1,095 kWh, 87,600원, 하루 10회 가동 기준 1,509 kWh, 120,693원으로, 각각 약 62.5%, 86.1%의 에너지 절감 효과를 얻을 수 있다.
기술개발 일정 및 추진체계
개발 일정
추진체계
설계
제품의 요구사항
[표1] 설계 요구사항
설계의 목적 계통도
[그림1] 설계의 목적 계통도
설계 대상지 선정 및 예상 배치도 설계
(1) 연구실 배치
- 본 설계의 적용 대상은 서울시립대학교 환경공학부 연구실 중 시대융합관 516호이며 평면도는 다음과 같다.
- 시대융합관 516호를 기준으로 구성한 환기시스템의 예상 이미지는 다음과 같다.
(2) 세부 배치 내용
⓵ 가스 센서
연구원이 실험 중 유해 물질에 직접 노출될 가능성이 높은 높이를 기준으로 가스 센서를 설치한다. 센서는 일반적인 성인 연구원의 호흡기 위치에 해당하는 높이(약 1.5m 내외)에 배치하여, 실내 공기 중 연구원이 흡입하는 유해 물질의 농도를 실시간으로 감지할 수 있도록 한다.
⓶ 실시간 모니터링 디스플레이
연구원이 시각적으로 유해 물질 농도를 쉽게 확인하고, 필요 시 신속하게 대응할 수 있도록 가시성이 높은 위치에 설치한다. 연구자의 주요 동선과 시야 범위를 고려하여 배치하여 효과적으로 실시간 정보 전달이 가능하도록 설치한다.
⓷ 실시간 모니터링 외부 디스플레이
실험실 외부에서도 내부의 공기질 상태를 실시간으로 확인할 수 있도록 하여, 외부인의 안전 확보와 신속한 대응이 가능하도록 쉽게 시야에 들어오는 위치에 설치한다.
실시간 공기질 모니터링 및 제어 시스템 설계
- 본 설계의 연구실 내 유해물질 측정 시스템은 실외에서 유입되거나 실내에서 발생할 수 있는 화학적, 물리학적 유해물질을 실시간으로 측정하고, 모니터링 시스템을 통해 연구자들에게 실시간으로 정보를 제공한다. 시스템 구성 흐름도는 아래와 같다.
(1) 센서 모듈
- 서울시립대학교 환경공학부의 각 연구실에서 배출되는 물질은 설문조사 결과 NH₃, NOx, HCl, H₂SO₄, CO, CO₂, CH₄, CH₃OH, VOCs, PFAS, H2, 중금속, 타르 등으로 나타났다. 본 설계에서는 이들 물질 중 센서로 효과적으로 감지할 수 있는 가스를 중심으로 설계를 진행하고자 한다. 특히, 다양한 가스를 보다 정밀하게 식별하기 위해 여러 종류의 센서를 조합하여 감지 특성의 차이를 분석하고, 이를 기반으로 유해물질을 구분할 수 있도록 설계하였다. 구체적인 센서별 성능은 아래 표와 같다. 모든 MQ센서는 –15°C~70°C 까지 측정할 수 있지만, 열에 민감한 MQ센서의 특성상, 최적의 온습도를 고려하여야한다고 판단하였으므로 온습도 센서도 추가한다.
(2) 농도 기준
- 주요 물질에 대하여 산업안전보건공단에서 제공하는 노출기준(TWA, STEL)과 폭발한계(LEL)를 종합적으로 고려하여, 환기 시스템이 자동으로 작동하는 임계값을 설정하고자 한다. 가스별로 설정된 임계 기준치는 연구실 내 안전성을 강화하기 위한 핵심 지표로 활용되며, 이러한 기준을 기반으로 환기 및 경보 시스템이 효율적으로 작동하게 된다. 화학물질별 노출기준 및 폭발한계에 대한 구체적인 내용은 아래 표에 정리하였다.
(3) 환기량 계산
- 유해 물질이 기준 이상 발생할 경우 아래 식을 이용하여 아래 식에서 계산한 환기량을 충족할 때까지 자동 환기된다.
이론적 계산 및 시뮬레이션
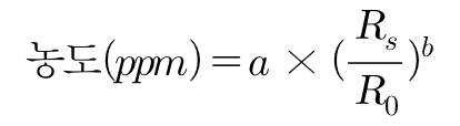
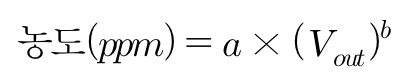
(1) ppm 단위 변환 계산
반도체식 가스 센서는 센서의 저항(Rs)이 공기 중 가스 농도에 따라 변화하는 특성을 이용하여 ppm 단위의 농도로 변환하였다. MQ-7과 MQ-8 센서는 모두 깨끗한 공기(실내 외기와 유사한 조건)에서 충분한 예열을 거친 후, 안정화된 상태에서의 Rs 값을 측정하여 이를 기준 저항값인 R₀으로 설정하였다. R₀은 데이터시트의 그래프에 제시된 Rs/R₀ 대 ppm 관계식을 적용하기 위한 기준점으로 사용된다. 이후 실시간으로 측정된 Rs 값을 R₀과 비교하여 Rs/R₀ 비를 계산하였고, 이 값을 기반으로 데이터시트 상 로그 스케일의 곡선을 근사한 지수 함수를 통해 가스 농도(ppm)를 산출하였다. 한편, MiCS-6814 복합 가스 센서는 NH₃, NO₂, CO에 대해 각각의 아날로그 출력 전압을 제공하는 구조로, 직접적인 Rs 측정이 불가능하다. 따라서 본 실험에서는 센서에서 출력되는 전압 값을 직접 이용하여 농도를 계산하였다. 이를 위해 데이터시트 상의 출력 전압 대 농도(ppm) 그래프를 로그 스케일로 변환하고, 선형 근사를 통해 각 가스 성분에 대한 전압–농도 관계를 지수 함수 형태로 모델링하였다. 해당 근사식을 통해 실시간 측정 전압으로부터 NH₃ 및 NO₂의 농도를 추정하였다.
⓵ MQ-8
Rs/R0 비를 계산한 뒤, 다음의 근사식을 사용하여 수소 농도로 변환하였다.여기서 a = 99.042, b = -1.518로 설정하였다. 이는 MQ-8 데이터시트 상 Rs/R0 vs H₂(ppm) 곡선을 로그 스케일에서 직선으로 근사하여 도출한 값이다.
⓶ MQ-7
마찬가지로, 실시간 Rs 값을 기준으로 Rs/R0 비를 구한 후, 다음 식을 적용하여 CO 농도를 계산하였다여기서 a = 100.0, b = -1.5로 설정하였으며, 이는 MQ-7의 데이터시트 그래프를 참고하여 도출한 근사값이다.
⓷ MiCS-6814
MiCS-6814는 센서 내부 저항을 직접 구하는 방식이 아닌, 전압 출력값을 기반으로 농도를 근사하는 방식으로 처리하였다.실험에서는 데이터시트 상의 출력 전압 대 농도(ppm) 곡선을 참고하여, 각 가스에 대해 다음의 지수 함수를 적용하였다.여기서 Vout 은 센서 출력 전압이며, a,b는 데이터시트에 제시된 로그 스케일 곡선을 기반으로 선형 근사하여 도출한 근사값이다. (NH₃ : a=10.0, b=2.0, NO₂ : a=20.0, b=1.8) 이러한 근사식을 통해 실시간 측정 전압으로부터 NH₃ 및 NO₂의 농도를 정량적으로 추정할 수 있었다. CO 채널은 본 실험에서는 사용하지 않았다. 이렇게 변환된 수소 및 일산화탄소 농도 값은 ESP32를 통해 MQTT로 전송하였고, Node-RED 대시보드에서 시각화하였다. 또한, 설정된 임계값을 초과하는 경우 자동으로 환기 시스템이 작동하도록 로직을 구성하였다.
하드웨어 설계
(1) 유해물질 감지 센서 모듈
- 연구실 내의 유해물질을 실시간으로 감지하기 위하여 여러 개의 센서 모듈을 아두이노 회로를 활용하여 연결하였다. 각 센서별로 출력 방식에 맞게 아날로그, 디지털, 직렬(UART) 방식으로 데이터를 ESP32로 전송하도록 설계 및 연결하였다. 또한, 연구실 내의 유해물질을 감지할 뿐만 아니라, 온습도에 민감한 센서의 특징을 고려하여, 온습도 측정까지 더하여 센서의 정확도를 높이고자 하였다. MQ-8 수소 센서를 회로에 연결할 때, 센서 출력 전압을 ESP32의 ADC 입력 범위에 맞도록 조정하기 위해 두 개의 저항을 사용하여 전압 분배기를 구성하였다. 센서의 아날로그 출력 라인에는 10kΩ과 20kΩ 저항을 직렬로 연결하였고, 이 가운데에서 분압된 전압을 ESP32의 ADC 핀으로 입력받도록 하였다. 이를 통해 MQ-8 센서의 출력 전압이 5V를 초과하지 않도록 조정하였으며, ESP32가 안정적으로 수소 농도를 측정할 수 있도록 회로를 설계하였다. 이러한 저항 분배 구조는 센서의 동작 안정성과 측정 정확도를 높이기 위한 목적으로 적용되었다. 한편, DHT22 온습도 센서는 단일 와이어 방식으로 데이터를 송수신하는 디지털 센서이기 때문에, 데이터 핀에 풀업 저항을 연결하였다. 풀업 저항은 신호의 안정성과 정확한 데이터 수신을 위해 필수적이며, 본 회로에서는 10kΩ 저항을 사용하여 ESP32의 디지털 입력 핀에 연결하였다. 이와 같은 저항 구성은 센서의 정상적인 동작과 데이터의 신뢰성 확보를 위한 필수 요소로 적용되었다.
(2) 자동환기 제어부
- 센서 모듈을 통해 실시간으로 연구실 내의 유해물질 농도를 전달받고, 센서 측정값이 설정 기준 이상일 경우 자동으로 환기 장치가 작동하도록 아두이노 회로를 활용하여 설계 및 연결하였다. ESP32가 모든 센서 데이터를 처리하고, 조건을 판단한 뒤, MOSFET모듈을 LOW로 구동하여 DC팬의 작동 여부를 제어할 수 있다. 작동 시 과전압,역전류 등를 우려하여 팬은 외부 전력과 연결하여 설계하였다.
[그림2] 아두이노 설계 회로도
(3) 실시간 모니터링 시스템
- 본 설계에서 ESP32와 MQTT, 그리고 Node-RED를 활용하여 센서 데이터를 웹 브라우저에서 실시간으로 시각화하고, 정해진 기준값을 초과할 경우 사용자에게 경고 및 환기 작동 상황을 전달하는 시스템을 구축하였다. 센서가 연결된 ESP32가 주기적으로 데이터를 측정하고, 이를 MQTT 프로토콜을 통해 브로커로 전송한다. Node-RED는 이 데이터를 받아 실시간으로 처리하고, 대시보드에 시각적으로 표시한다. 사용자는 웹 브라우저를 통해 Node-RED 대시보드에 접속함으로써 현재 상태를 연구실 내의 디스플레이에서 실시간으로 확인할 수 있다. 특정 기준을 초과할 경우에는 경고 메시지를 표시하거나, 대시보드 상의 색상을 변경하여 이상 상황을 직관적으로 알 수 있도록 구현하였다.
[그림3] 대시보드 화면 예시
소프트웨어 설계
(1) 데이터 수집 및 변환 알고리즘
- ESP32는 주기적으로 각 센서로부터 데이터를 수집하며, 센서의 종류에 따라 데이터 획득 방식이 달라진다. 아날로그 센서의 경우, ESP32의 ADC값을 통해 아날로그 전압 값을 읽는다. 이 전압 값은 센서의 특성 곡선을 기반으로 실질적인 가스 농도로 환산된다. 그리고 가스 농도에 따라 저항 값이 변하며, 이 변화된 전압을 수학적으로 보정하여 ppm 단위로 변환한다. 디지털 센서의 경우, UART 통신을 통해 센서가 직접 측정한 농도를 ppm 값으로 수신한다.
(2) 기준 비교 및 상태 판단 알고리즘
- 각 센서로부터 측정된 농도는 사전에 정의된 노출 기준치와 비교되며, 정상상태, 경고 단계, 자동 환기 단계, 비상 단계의 4가지로 분류된다. 이러한 알고리즘은 Node-RED의 Function 노드를 통해 구현되며, 센서별로 독립적으로 작동되도록 설계하였다.
[그림5] 센서 별 기준비교 및 상태판단 코드예제
(3) 제어 및 경보 출력 알고리즘
- ESP32는 MOSFET 모듈을 통해 환기 팬의 ON/OFF를 제어하고, Node-RED로 MQTT를 통해 상태를 전송하여 대시보드에 표시할 수 있도록 알고리즘을 설계하였다.
[그림6] 제어 및 경보 출력 알고리즘 코드 예제
(4) 시각화 알고리즘
- Node-RED를 활용하여 웹 기반 대시보드 상에서 각 센서의 데이터를 실시간으로 시각화하며, 게이지, 경고 메시지 박스 등을 통해 상태 정보를 전달하도록 알고리즘을 설계하였다.
[그림7] 대시보드 화면 노드 구성 에시
결과 및 평가
완료 작품의 소개
(1) 유해물질 감지 기반 자동 환기 및 실시간 모니터링 시스템
아래는 시연물 전체의 모습으로, 도면을 참고하여 시대융합관 516호 연구실의 규격과 덕트 위치 등을 참고하여 제작하였다.
(2) 유해물질 감지 센서
각각의 센서가 공기 중의 유해물질을 감지하고 이 값을 대시보드와 MQTT통신을 통해 Node-RED 대시보드로 보내어 실시간으로 모니터링 할 수 있다.
(3) 실시간 모니터링 시스템
아래 화면은 인위적으로 MQ-7 센서에 가스를 감지시켜 일산화탄소를 증가시켰을 때 보여지는 모니터링 화면의 모습이다. 각각의 기체의 농도가 설정한 기준을 넘으면 환기 팬이 작동되고 상단의 ‘환기 작동 중’ 박스가 초록색으로 바뀌며 사용자에게도 환기가 작동되고 있음을 시각적으로 확인시켜 줄 수 있다. 아래 그림은 연구실 외부 대시보드의 화면으로, 연구실 내부 대시보드에는 ‘연구실1’, ‘연구실2’ 와 같이 어떤 연구실의 공기질 정보인지를 나타내는 기능을 생략하였다.
포스터
관련사업비 내역서
완료작품의 평가
향후계획
내용
특허 출원 내용
내용

















































